Контактная информация

Описание

Удобство, комфорт и практичность

Кузов автофургона представляет собой цельнометаллическую каркасную конструкцию. Внутренняя обшивка фургона выполнена автомобильным пластиком. В качестве теплоизолирующего материала используется пенополистирол толщиной 60 мм.

Кузов-фургон ПАРМ разделен на 2 отсека: грузовой и ремонтный отсеки. Для поддержания необходимой температуры внутри ремонтного отсека мастерская оборудована автономным воздушным отопителем мощностью 8 кВт.

Фургон оборудован окнами на скосах фургона, обеспечивающими естественное освещение. Окна изготовлены из травмобезопасного стекла и окантованы уплотнителем.

Кузов-фургон ПАРМ оснащен вентиляционным люком, обеспечивающим большую проветриваемость и циркуляцию воздуха в салоне, в случае необходимости может быть использован в качестве аварийно-эвакуационного люка.

Вход в ремонтный отсек осуществляется по двухсекционной раскладной лестнице. Для удобства и экономии пространства лестница в транспортном положении убирается в нишу под полом кузова-фургона. Конструкция лестницы предусматривает широкие ступеньки, по которым легче производить спуск и подъем. Ступеньки изготовлены из стального рифленого листа, что исключает случайное соскальзывание ноги.

Применение высококачественных материалов и комплектующих при изготовлении, отделке и комплектации салона фургона позволяют обеспечить высокий уровень организации выполняемых ремонтных работ. Просчитанная конструкция, высокое качество и износостойкость материалов, применяемых в отделке кузова-фургона, обеспечивают надежность и долгий срок эксплуатации фургона.

Оборудование ПАРМ

Передвижная авторемонтная мастерская (ПАРМ) оснащена всем необходимым оборудованием и инвентарем для проведения ремонтных и восстановительных работ: верстаком с выдвижными ящиками, слесарными тисками, станками различного назначения, сварочным выпрямителем 26 кВт, шанцевым инструментом, газорезательным и сварочным оборудованием. Все оборудование и инструмент надежно закреплены на штатных местах.

Фургон оборудован розетками для подключения потребителей 220 и 380V. Для работы в темное время суток все рабочие места фургона оборудованы плафонами освещения и настольным светильником.

Для быстрого доступа и удобства эксплуатации сварочного выпрямителя в кузове-фургоне предусмотрен специальный люк.

Бортовая площадка и грузоподъемное оборудование

Грузовой отсек ПАРМ выполнен в виде бортовой площадки открытого типа и предназначен для транспортировки груза. Площадка оборудована правым откидным бортом. На откидном борту закреплена раскладная ступенька, обеспечивающая более легкий подъем на грузовую платформу. На площадке расположены контейнеры для транспортировки и временного хранения газосварочных баллонов.

Для избежания перемещения груза во время транспортировки предусмотрены специальные петли для увязки груза.

На заднем свесе автомобиля Урал ПАРМ установлен кран-манипулятор ИМ-25, обеспечивающий проведение грузоподъемных работ с весом до 0,99 тонн.

Организация бортовой электросети

Питание оборудования ПАРМ Урал осуществляется от генератора мощностью 25,6 кВт, установленного на раме автомобиля под кузовом-фургоном, а также от внешнего источника питания, для подключения которого предусмотрен специальный разъем.

Защита потребителей и цепей 380В и 220В от перегрузок и короткого замыкания обеспечивается соответствующими автоматическими выключателями и модулем защитного отключения, установленным в шкафу управления. Напряжение 24В постоянного тока подается из электрической схемы базового автомобиля.

Комплектация

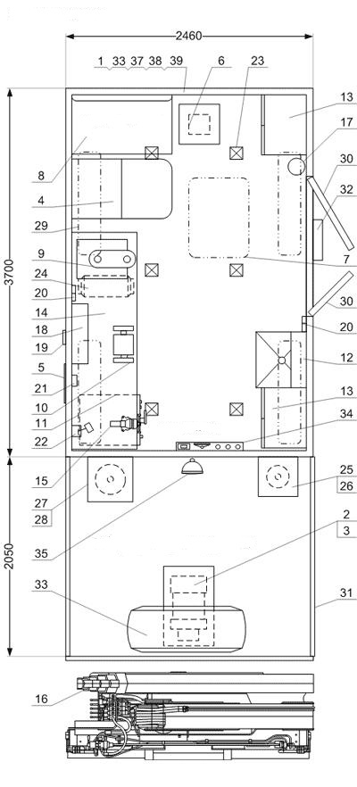
  1. Кузов-фургон: каркас сварной; наружная обшивка – стальной лист; утеплитель - пенополистирол (S=60 мм). Внутренняя отделка: стены – пластик, снизу 1000 мм чёрный пластик; потолок – пластик; пол – бакелитовая фанера (S=12 мм), пенополистирол между брусом (S=30 мм), фанера (S=12 мм), автолин;
  2. Генератор синхронный ГБС или аналог;
  3. Люк генератора;
  4. Стол с откидной столешницей;
  5. Люк сварочного выпрямителя;
  6. Люк коробки отбора мощности;
  7. Люк аварийно-вентиляционный;
  8. Диван-рундук;
  9. Станок вертикально-сверлильный;
  10. Точильно-шлифовальный станок или аналог;
  11. Выпрямитель сварочный ВД-313 (26 кВт, 60-315 А) или аналог;
  12. Умывальник с подогревом воды (изготовлен из тумбы сварной, мойки из нержавеющей стали и оснащен баком для накопления и подогрева воды; все коммуникации скрыты в металлическом шкафу под раковиной);
  13. Шкаф для одежды и шкаф для оборудования;
  14. Верстак металлический с выдвижными ящиками;
  15. Слесарные тиски;
  16. КМУ Palfinger ИМ-25 (2,52 тн/м, 990 кг на 2,5 м, 6,78 м) или аналог;
  17. Огнетушитель;
  18. Электрошкаф (покрытие: эпоксидно-полиэфирный порошок - обладает высокими механическими свойствами, очень хорошей стойкостью к перегреву);
  19. Внешний подвод электроэнергии (20 кВт, 380 В);
  20. Розетка 220В двойная (2 шт.);
  21. Розетка 380В;
  22. Светильник 220В;
  23. Фонари освещения (24 В, 21 Вт) (6 шт.);
  24. Автономный воздушный отопитель мощностью 8 кВт;
  25. Шкаф кислородного баллона;
  26. Кислородный баллон;
  27. Шкаф пропанового баллона;
  28. Пропановый баллон;
  29. Окно на скосе фургона (4 шт.);
  30. Дверь входная двустворчатая (оборудована качественным и надежным замком);
  31. Борт боковой откидной;
  32. Двухсекционная раскладная металлическая лестница (конструкция лестницы предусматривает широкие ступеньки с противоскользящим эффектом);
  33. Принадлежности (противооткатные башмаки, знак аварийной установки, аптечка медицинская);
  34. Шанцевый инструмент (лом; топор; кувалда; лопата штыковая; пила двуручная);
  35. Фара-прожектор 24В;
  36. Запасное колесо;
  37. Газорезательное оборудование (резак пропановый, горелка газовая с насадками, редуктор пропановый, редуктор кислородный, рукав газовый 20 м, рукав кислородный 20 м);
  38. Средства электробезопасности (боты диэлектрические, ковер диэлектрический, перчатки резиновые диэлектрические, штыри заземления (3 шт.) с проводом 10 п. м.);
  39. Сварочное оборудование (электрододержатель, крепление массового провода (струбцина), кабель сварочный 2х15 м, маска сварщика).

Характеристики

КМУ ИМ-25

Грузовой момент, тм 2,52
Грузоподъемность на вылете 2,5 м, кг 990
Грузоподъемность на вылете 6,78 м, кг 350
Максимальный вылет стрелы, м 6,78

Характеристики шасси

Базовое шасси

Урал 4320-1912-60Е5

Колесная формула

6х6

Кабина

Тип

4320, капотная

Спальное место

Нет

Двигатель

Модель

ЯМЗ-65674

Тип

Дизельный, четырехтактный, с турбонаддувом, V-образный

Рабочий объем, л

11,15

Мощность , л.с

230

Максимальная частота вращения, мин-1

2100

Максимальный крутящий момент, Нм

879

Частота вращения при максимальном крутящем моменте, мин-1

1100-1500

Топливная система

Емкость топливного бака, л

300+210

Коробка передач

Модель

ЯМЗ-2361

Тип

Механическая, 5-ти ступенчатая

Раздаточная коробка

Производитель

АО «АЗ УРАЛ»

Тип

2-х ступенчатая, с межосевым дифференциалом

Тормозная система

Привод тормозной системы

Пневматический

Шины

Размер шин

425/85 R21