Контактная информация

Описание

Агрегат наземного ремонта водоводов предназначен для ремонта и профилактического обслуживания: технологического оборудования водопроводов, канализации в коммунальном хозяйстве населенных пунктов, а также наземного оборудования нефтепромыслов, технологических трубопроводов нефтесборных пунктов, элементов фонтанной арматуры и станков-качалок.
На заднем свесе автофургона смонтирован КМУ ИМ-50 для проведения грузоподъемных работ весом до 2 тонн.

Удобство, комфорт и практичность

Фургон цельнометаллический, каркасной конструкции, разделён на рабочий отсек и открытую площадку. В качестве наружной обшивки фургона применен стальной лист, внутренняя обшивка фургона из пластика, в качестве теплоизоляции фургона применён пенополистирол. Пол фургона четырёхслойный и состоит из фанеры, слоя пенополистирола, фанеры и резиново-пластикового покрытия.

В левой панели фургона встроено окно, обеспечивающее естественное освещение, вентиляцию и необходимый обзор. В ночное время освещение кузова-фургона электрическое.

АНРВ с КМУ оснащена всем необходимым оборудованием и инвентарем для проведения ремонтных и восстановительных работ.

Фургон оборудован розетками для подключения потребителей 220 и 380V. Для работы в темное время суток все рабочие места фургона оборудованы плафонами освещения.

Для быстрого доступа и удобства эксплуатации оборудования в кузове-фургоне предусмотрен специальный люк.

Планировка и расположение оборудования произведены с учетом максимально полезного использования пространства мастерской и удобства работы персонала. Все оборудование и инструмент надежно закреплены на штатных местах.

Бортовая площадка и грузоподъемное оборудование

Грузовой отсек АНРВ выполнен в виде бортовой площадки открытого типа с правым откидным бортом. Также на площадке расположены крепления для транспортировки и временного хранения газосварочных баллонов.
На грузовой платформе, рядом с задним бортом, расположен люк обеспечивающий доступ к электрогенератору.

На заднем свесе АНРВ установлена крано-манипуляторная установка ИМ-50 для проведения грузоподъемных работ.

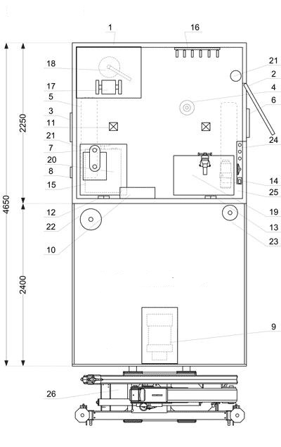
  1. Кузов-фургон:
    Каркас сварной; наружная обшивка - стальной лист; утеплитель -пенополистирол (S=40мм)
    Внутренняя отделка: потолок, стены - высококачественный автомобильный пластик; пол:- лист металлический (S=1,2мм), пенополистирол (S=30мм), фанера S=12мм, резиново-пластиковое покрытие (автолин)
    Окраска по технологии изготовителя MIPA (толщина ЛКП не менее 80мкм);
  2. Дверь входная одностворчатая;
  3. Люк сварочного аппарата;
  4. Вентилятор накрышный;
  5. Окно глухое в скосе фургона с двойным остеклением;
  6. Выдвижная двухсекционная лестница под полом фургона в коробе;
  7. Станок вертикально-сверлильный;
  8. Внешний подвод эл. энергии (380В, 20кВт);
  9. Генератор синхронный с люком обслуживания ГБС-28;
  10. Электрошкаф;
  11. Плафон освещения (24В);
  12. Розетка (380В);
  13. Розетка двойная (220В);
  14. Автономный воздушный отопитель Планар 4Д-24М с пультом управления;
  15. Выпрямитель сварочный ВД-313;
  16. Вешалка для одежды;
  17. Точильно-шлифовальный станок;
  18. Нагнетатель смазки механический;
  19. Верстак с выдвижными ящиками и тисами слесарными;
  20. Подставка под оборудование;
  21. Огнетушитель;
  22. Место под пропановый баллон с элементами крепления;
  23. Место под кислородный баллон с элементами крепления;
  24. Шанцевый инструмент;
  25. Средства электробезопасности
  26. Крано-манипуляторная установка ИМ-50 (4,4 тн/м, 2000 кг на 2 м, 6,14 м).

Характеристики

Характеристики КМУ ИМ-50

Грузовой момент, тм 4,4
Максимальный вылет стрелы, м 6,14
Грузоподъемность на вылете 6,14 м, кг 740
Грузоподъемность на вылете 2,0 м, кг 2 000

Характеристики шасси

Базовое шасси Урал 4320-61
Колесная формула 6х6
Параметры масс
Полная масса, кг 17 205
Снаряженная масса, кг 12 347
Масса перевозимого груза, кг 1 500
Распределение нагрузки от фургона полной массы
На передний мост, кг 5 270
На заднюю ось, кг 11 935
Двигатель
Модель ЯМЗ-65674
Тип дизельный
Мощность, л. с. 230
Коробка передач
Модель ЯМЗ-2361
Тип механическая, 5-ступенчатая
Колеса и шины
Размер шин 14.00-20
Габаритные размеры автомобиля
Длина, мм 8 990
Ширина, мм, не более 2 550
Высота, мм, не более 3 850
Габаритные размеры кузова-фургона
Длина грузовой платформы, мм 2 400